Πρόταση για setup ήχου σε δύσκολο σαλόνι

acme

New member
8 June 2010
52
Καλησπέρα σε όλους και καλή Μεγάλη εβδομάδα,

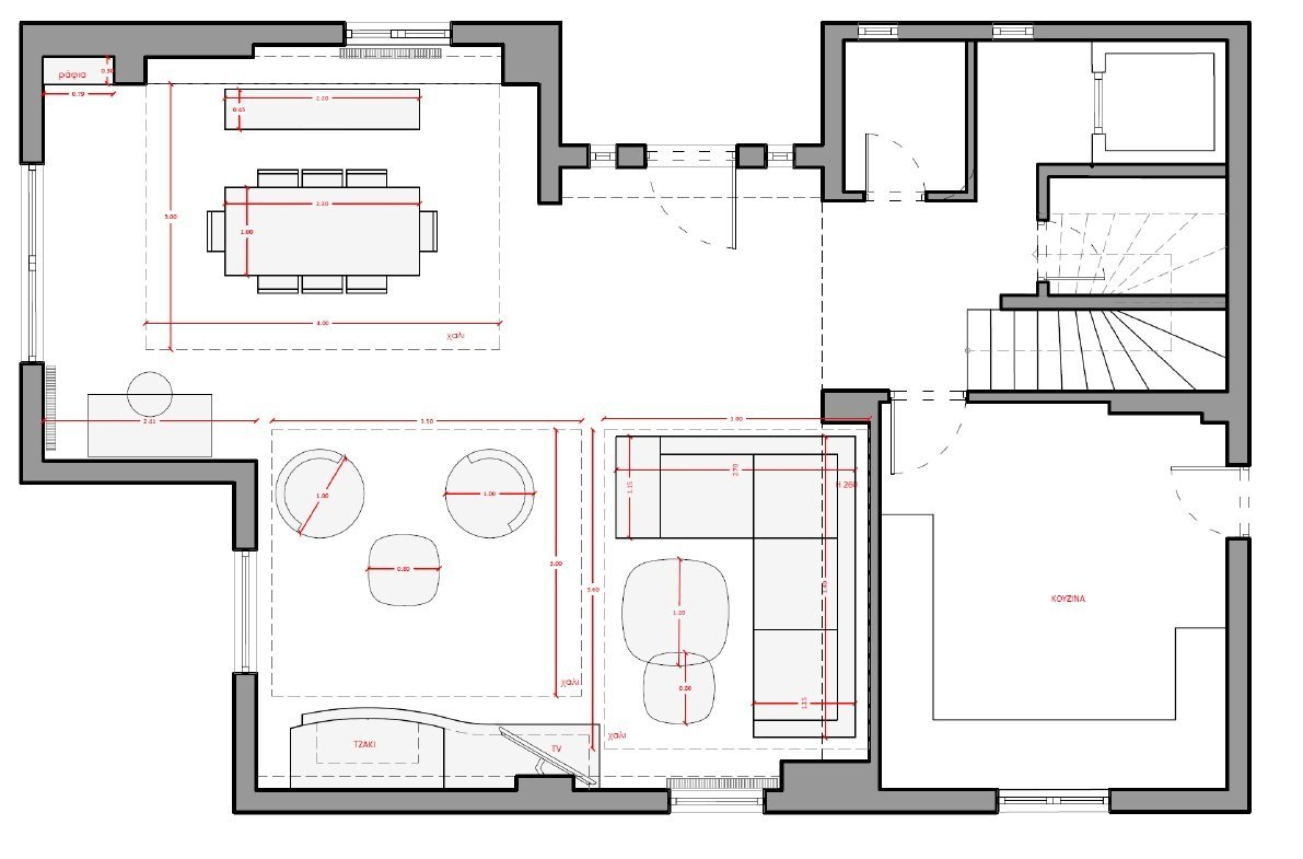
Επισυνάπτω κάτοψη γιατί θα ήθελα γνώμες για το τι setup ήχου θα μπορούσε να σταθεί αξιοπρεπώς σε αυτόν τον χώρο.

Δεν ψάχνω απαραίτητα το “σωστό” θεωρητικά setup, γιατί καταλαβαίνω ότι ο χώρος έχει ιδιαιτερότητες. Με ενδιαφέρει περισσότερο τι θα μπορούσε να αξιοπρεπώς στην πράξη.

Η χρήση θα είναι και για ταινίες από τον καναπέ, αλλά και για μουσική γενικά στον χώρο, οπότε δεν θέλω κάτι που να είναι μόνο home cinema και να υστερεί τελείως στο υπόλοιπο σαλόνι/τραπεζαρία.

Η τηλεόραση όπως φαίνεται θα είναι σε βραχίονα και θα γυρίζει, άρα το μπροστινό stage δεν είναι εύκολη υπόθεση.

Τώρα θα γίνουν και εργασίες με γυψοσανίδα στην οροφή, οπότε αν έχει νόημα να περαστούν από τώρα καλώδια για κάποια διάταξη, θα ήθελα να το προβλέψω. Προτιμώ γενικά ενσύρματη λύση και όλα θα παίζουν από έναν AV ενισχυτή.

Θα ήθελα τις απόψεις σας για το τι θα είχε περισσότερο νόημα εδώ:
3.1, 5.1, 5.1.2, κάτι με in-ceiling, ή γενικά κάποια άλλη προσέγγιση που να εξυπηρετεί και ταινία και μουσική όσο γίνεται πιο ισορροπημένα.

Ευχαριστώ εκ των προτέρων.
 

Attachments

  • Screenshot 2026-04-08 124304.jpg
    Screenshot 2026-04-08 124304.jpg
    85.6 KB · Views: 40
Εξαρτάται καταρχήν από τις απαιτήσεις (σε μουσική αλλά και HC).

Μία πρώτη σκέψη είναι ενισχυτής με 2η ζωνη στην οποία θα συνδεθούν 2 ηχεία in ceiling για την τραπεζαρία και ότι καλύτερο σου βγαίνει αισθητικά / τεχνικά / οικονομικά για το σαλόνι (αναλόγως προφανώς και των προτεραιοτήτων όσον αφορά την θέση ακρόασης).

Αφού βάζεις τώρα γυψοσανίδα πάντως, εννοείται οτι κοιτάς να περάσεις καλώδια για ηχεία οροφής (και αν μπορείς / βγει και για on wall πχ για το σαλόνι).

Θέλει πάντως μια προσεκτική προσέγγιση.
 
Χωρίς διαφορετική διαρύθμιση, δύσκολo έως αδύνατο να μπορέσεις να έxεις αποτέλεσμα immersive.

Σε αυτή τη διαρύθμιση πρακτικά κοιτάζεις μόνο για ηχεία και sub in-ceiling με σκοπό την αναπαραγωγή μουσικής, χωρίς φυσικά να υπάρχει στερεοφωνία. Μόνο ηχητική κάλυψη του χώρου, αλλά σωστή.
 
Βλέποντας την κάτοψη, η μόνη λύση που θα δοκίμαζα (και θα λειτουργούσε πολύ καλά οπτικοακουστικά) θα ήταν να γυρίσω τον καναπέ 90 μοίρες αριστερόστροφα και να μπει η τηλεόραση στον τοίχο δεξιά. Φαίνεται λίγο περίεργο γιατί χωρίζει το σαλόνι στα δυο, αλλά έχω κάνει κάτι αντίστοιχο σπίτι μου και στην πράξη λειτουργεί μια χαρά.
 
  • Like
Reactions: Panoramix
Σε αυτό τον χώρο, η καλύτερη λύση για να ακούσεις σωστά θα ήταν να αλλάξεις θέση στον γωνιακό καναπέ με την τραπεζαρία, μεταφέροντας δηλαδή το σαλόνι. Κάτι που πιθανώς θα ευχαριστήσει και τη σύζυγο, καθώς θα φέρει την τραπεζαρία δίπλα στην κουζίνα.
Αν αυτό δεν είναι εφικτό / επιθυμητό, η επόμενη λύση είναι η αντιμετάθεση του γωνιακού καναπέ με τις στρογγυλές μπερζέρες που είναι μπροστά στο τζάκι. Θα βάλεις βεβαίως τη μεγάλη πλευρά του καναπέ φάτσα με το τζάκι, οπότε θα μπορέσεις να έχεις την οθόνη σου κάθετα στον τοίχο και να στήσεις τα ηχεία σου σωστά, δηλαδή front left και front right εκατέρωθεν του τζακιού και της τηλεόρασης και center στο έπιπλο κάτω από την τηλεόραση. Αυτός που θα κάθεται στην άκρη του καναπέ θα έχει την τέλεια θέση για παρακολούθηση, αλλά και οι διπλανοί του σε καναπέ και μπερζέρες θα μπορούν να παρακολουθήσουν μια ταινία.

Υ.Γ.: Αυτά χωρίς να γνωρίζω τους πραγματικούς περιορισμούς του χώρου.
 
  • Like
Reactions: Panoramix
Ευχαριστώ πολύ όλους για τις απαντήσεις, είναι όντως ξεκάθαρο ότι με την τωρινή διαρρύθμιση δεν υπάρχει ιδανικό σενάριο.

Να δώσω λίγο παραπάνω context: η παρούσα διάταξη δυστυχώς μέχρι να αλλαχτεί ο καναπές, δεν θα αλλάξει για διάφορους άσχετους λόγους.
Μελλοντικά όμως, σκοπός είναι να αλλαχθεί ο υπάρχων καναπές, ώστε να γίνει άλλη διαρρύθμιση και η τηλεόραση να γυρίσει flat στον τοίχο.

Στο μελλοντικό σενάριο τα πράγματα θα είναι πολύ πιο απλά και λογικά :
  • 2 μεγάλα επιδαπέδια ηχεία στις γωνίες δεξιά και αριστερά του σαλονιού στην προέκταση της τηλεόρασης
  • 1 κεντρικό κάτω από την τηλεόραση
  • 2 ηχεία οροφής δεξιά και αριστερά από τον νέο καναπέ, που τότε θα είναι απέναντι από την τηλεόραση
  • και 2 ηχεία στην τραπεζαρία για όταν θέλω μουσική στον χώρο
Μέχρι να γίνει όμως αυτή η αλλαγή, αυτό που σκέφτομαι αυτή τη στιγμή (και ειλικρινά με ξενερώνει σαν λύση) είναι να πάρω μια ηχόμπαρα μόνο για την τηλεόραση και να αφήσω τα ηχεία που έχω ήδη (2 επιδαπέδια, 1 sub, 1 κεντρικό, 2 μικρά επίτοιχα) απλωμένα στον χώρο μόνο για μουσική και έτοιμα να περιμένουν την αλλαγή του καναπέ.

Η αλήθεια είναι ότι δεν με ενθουσιάζει να πάω σε μια τέτοια προσωρινή λύση, ειδικά αφού ήδη έχω ηχεία, αλλά προσπαθώ να βρω κάτι που να είναι έστω αξιοπρεπές μέχρι να έρθει η ώρα να στηθεί σωστά.

Με βάση αυτά, μπορεί κάποιος να προτείνει κάποια πιο έξυπνη ενδιάμεση λύση ή θεωρείτε ότι, όσο δεν αλλάζει η διαρρύθμιση, η soundbar είναι μονόδρομος για την τηλεόραση;

Οπότε ουσιαστικά ψάχνω όχι τόσο την τέλεια τελική λύση, αλλά την πιο λογική μεταβατική λύση για 1-2 χρόνια.

Κάθε ιδέα ευπρόσδεκτη.

ΥΓ: πωλείται καναπές!!!!
 
Τα ηχόμπαρα μην τα σκέφτεσαι, ούτε και καμία ηχομπάρα.

Αφού μπορείς να βάλεις in-ceiling ηχεία, για να έχεις το real thing στο μέλλον όταν θα αλλάξεις διαρύθμιση, προς τα εκεί θα το πας.

Τα in-ceiling στο atmos δεν μπαίνουν αριστερά και δεξιά του καναπέ, αλλά στην ίδια ευθεία με τα εμπρός, εφόσον τα εμπρός είναι στις σωστές θέσεις εννοείται.

Μέχρι τότε, βόλεψέτα όσα καλύτερα μπορείς με τα ήδη υπάρχοντα ηχεία.